Venta

Ref.4720 Casă în șir în Silla

Calle Fernando Penella No.26

€389,000

  • Share:
  • Camere: 3 Camere
  • Bai: 2 Bai
  • Suprafața:200 m²
  • Tip Imobil:Casa

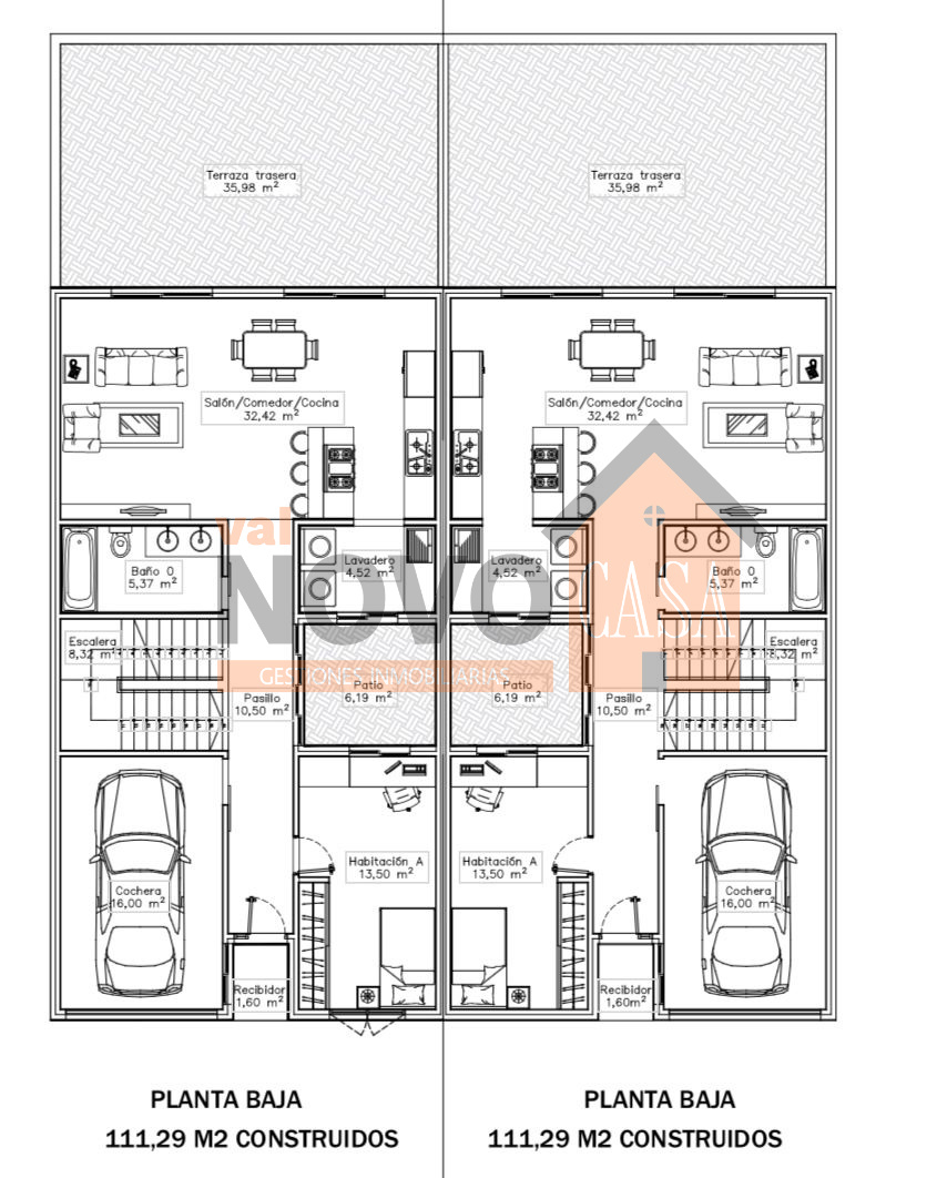
Agenția imobiliară Novocasa Silla oferă spre vânzare o casă în șir în Silla.
Locuința are o suprafață construită de 199,84 m², cu spații ample și foarte luminoase. Inima casei este un living-sufragerie cu bucătărie de 32,42 m², perfect pentru a vă bucura împreună cu familia sau prietenii, cu ieșire directă la o terasă de 35,98 m², ideală pentru petrecerea timpului liber în aer liber.
La parter se află un dormitor, o baie completă, o spălătorie separată și o curte interioară plăcută. Garajul privat, cu acces direct la casă, oferă confort și siguranță.
Etajul superior are două apartamente, ambele cu dressing și baie privată, plus două terase cu vedere liberă.
Această vilă se remarcă prin eficiența energetică ridicată (clasa A), datorită structurii din oțel zincat, izolației din vată minerală, tâmplăriei de înaltă performanță și geamurilor eficiente, garantând confort termic și economii de energie.
Situată într-o zonă rezidențială consolidată, combină liniștea cu o excelentă comunicare: apropierea de gară și acces rapid la autostradă.
Construcția va începe în ianuarie 2026, cu livrarea prevăzută în iunie 2026, și beneficiază de un sistem de plată flexibil, în etape, începând cu o rezervă de 15%.
O oportunitate unică de a locui într-o casă modernă, eficientă și concepută pentru a vă bucura de fiecare zi. 

Novocasa Silla dispune de o echipă de profesioniști pregătiți să găsească soluții pentru nevoile fiecărui client. Cu o experiență de peste 20 de ani, lucrăm pentru a oferi clienților noștri (naționali și internaționali) cele mai bune servicii.

*Acest anunț are caracter informativ și nu are valoare contractuală, putând conține erori.

** Preț de vânzare
Preț: 389.000 €
Prețul indicat nu include taxele și cheltuielile aferente vânzării, în conformitate cu legislația în vigoare.
În conformitate cu Legea 10/2025 privind transparența și serviciile de asistență pentru clienți, se informează că:
Cumpărătorul va trebui să suporte cheltuielile și taxele aferente vânzării, printre care:
•    Impozitul pe transferul de proprietate (ITP), în general 10%, cu excepția eventualelor reduceri) - aprox. 38.900 €
•    Cheltuieli de notar și înregistrare - aprox. 1500 €
•    Onorarii imobiliare 3% € + TVA (21%) 11.670 € + TVA (Total onorarii 14.121 €)

Comisionul agenției vânzătorului este inclus în preț.
Pentru mai multe informații despre ITP în Comunitatea Valenciană, puteți consulta agenția fiscală regională corespunzătoare.

***Vorbim și engleză și română.

Vizitați site-ul nostru web www.valnovocasa.com, pentru a fi la curent cu toate proprietățile noastre.
Contactați-ne astăzi pentru a programa o vizită și a descoperi această proprietate.
 

 

  • Certificat energetic: yes
  • Scală consum de energie: A
  • Valoare consum de energie: 104 KWh/m2 year
  • Scala de eficiență energetică: A
  • Valoarea eficienței energetice: 16 Kg CO2/m2 year
  • Bucatarie Open Space
  • Nemobilat
  • Gresie
  • Terasa
  • Garaje privado
  • Stare buna

Calle Fernando Penella No.26,Silla,L´Horta Sud,Valencia,Spain

Solicită informații
Sunt de acord să primesc materiale promoționale